中古
駿河区駿河区大和2
価格
2,624万円
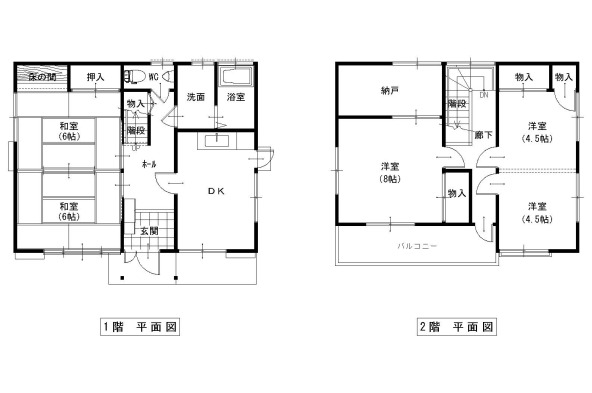
間取り
学区
森下小・高松中
ここがオススメ! 担当:渡辺
静岡駅徒歩12分の立地
森下小・高松中 5年程前に外壁塗装済み
物件概要
| 所在地 | 静岡市葵区駿河区大和2 | ||
|---|---|---|---|
| 交通 | 最寄駅:静岡徒歩約12分 最寄バス停:八幡徒歩約4分 |
||
| 学区 | 森下小・高松中 | ||
| 価格 | 2,624万円 | 間取り | |
| 建物面積 | 99.37 m² | 土地面積 | 108.52 m² (32.82 坪) |
| 築年月 | 昭和63年築 | 建物構造 | 木造セメント瓦葺 |
| 建築確認番号 | 昭和63年22927号 | 駐車場 | 1台 |
| 土地権利 | 所有権 | 公簿 | 宅地 |
| 都市計画 | 市街化区域 | 用途地域 | 準工業地域 |
| 建ぺい率 | 60% | 容積率 | 200% |
| 地域地区 | 法22条区域 高度地区 | 接道状況 | 西側幅員約3.5m私道(位置指定道路)に接道 |
| 設備 | 電気:有 水道:公営 ガス:LPG 都市ガス 排水:公共下水 | ||
| 引渡時期 | 相談 | 現況 | 空き家 |
| 取引態様 | 仲介 | ||
| 備考 |
現況地目:宅地 建物種類:居宅 静岡駅徒歩12分 森下小・高松中 |
||











